皆様、いつもありがとうございます。この度、かねてより準備を進めておりましたワインバーの「着工が完了」いたしましたことをご報告させていただきます。

2024年8月から工事着工しておりましたワインバーアビアントが無事に終えることができました。内装「落ち着いた空間」、メニュー「厳選ワインと料理」、サービス「心温まるおもてなし」✴日常の喧騒を忘れさせてくれると特別な場所です。グラスを傾けながら、美味しいワインと料理をゆっくりと味わう時間は心に安らぎを与えてくれます。落ち着いた雰囲気の中で、お気に入りのワインを見つけるのも楽しいものです。
~・~・~・~🍷~・~・~・~
栗駒高原の杉の魅力(*‘∀‘)








栗駒高原の杉のテーブルはワインバーに特別な価値をもたらします。木材が持つ温かい雰囲気で、お客様のリラックスを促し、厳選された素材で触れるたびに心地よさを感じられ、木目や色合いは一つ一つ異なり空間に個性を与えます。
~・~・~・~🍷~・~・~・~
🪵栗駒高原で伐採して加工したテーブル


~・~・~・~🍷~・~・~・~
🪚施工過程
お店の骨組みを作る大切な施工前の段階。まだ何もない空間ですが、ここから皆さんに至福のひとときを過ごしていただける場所へと変わっていきます。
~・~・~・~🍷~・~・~・~
〚1 階〛
床にマスキングテープを貼り、テーブルや椅子の配置を入念に確認中。お客様がゆったりと過ごせる空間をイメージしながら、一つひとつ丁寧に決めています。







マスキングテープで「あーでもない、こーでもない」と、レイアウトを試行錯誤。テープだらけの床を見ながら、皆さんと一緒にワインを飲む日を創造してワクワク!そしてついに長らく悩んだ配置が決定し、木材での着工が始まりました!図面上の線や仮で貼られたテープでは感じられなかった、木の温もりや香りが、少しずつお店の形になっていくのが本当に感動的です✨









クライアントのAさんと一緒に理想のワインバー開店向けて準備を進めている最中。素敵なワインバーを作り上げていく作業はまるで魔法のようです!私たちは単なる施工業者ではありません。お客様の夢を共有し、ともに汗を流すパートナーです。お客様が安心して過ごせる空間、そして気持ちよく働ける空間。その両方を叶えるため、床材選びやキッチンパネルの貼り付けにもこだわります。日々奮闘しているところです(^^)/


















栗駒高原で育った木々が美しいテーブルと生まれ変わります。一本一本の木に宿る物語を大切にしながら心を込めて仕上げていきます。






















栗駒高原の自然が育んだ木で作られたテーブルを囲むワインバー、ついに完成!!クライアントのA様の愛情と情熱が詰まった空間です。














~・~・~・~🍷~・~・~・~
〚お手洗い〛
トイレの空間は、お店の雰囲気を際立たせる大切な要素です。ワインの豊かな香りに包まれる店内はもちろんのこと、お手洗いもまた特別な時間をお過ごしいただけるよう趣向を凝らしております。









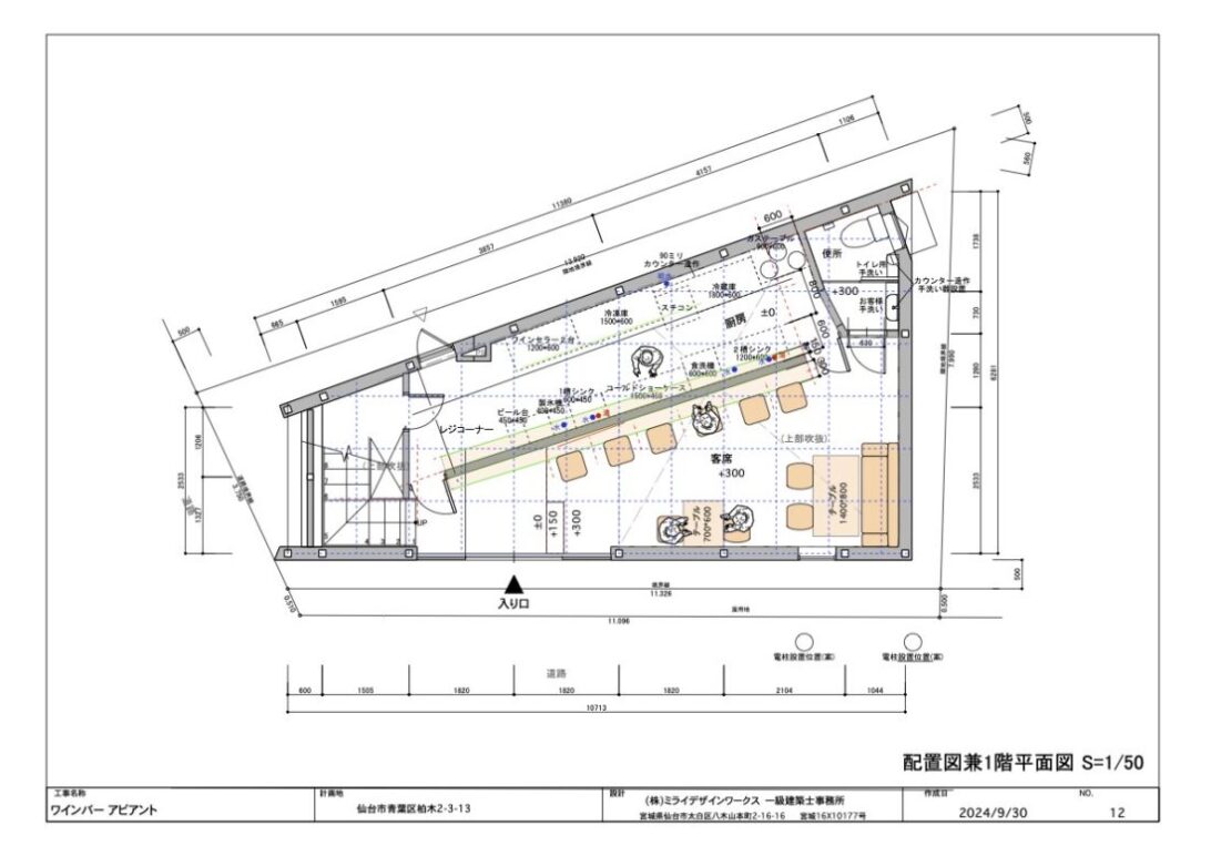
~1階 設計図~

~・~・~・~🍷~・~・~・~
〚2 階〛
大きな窓からやわらかな光が差し込みシンプルな空間は、訪れる人々を優しく包み込むワインバーへと生まれ変わります🍷


2階が持つ特別な雰囲気は、お客様に非日常と優越感を与え、隠れ家のようなプライベートな空間を演出します。










~2階 設計図~

都会の喧騒を忘れさせる、落ち着いた雰囲気の中でゆったりとした時間をお楽しみいただけます。お一人様でも、大切な方とのデートでも、心ゆくまでワインと会話に溢れる空間です🥂素敵な思い出作りの場所としても、ぜひ心安らぐひとときを過ごしてみませんか?
🍷お店の情報は…
店舗名:wine ber A bientot
所在地:宮城県仙台市青葉区柏木2-3-13
アクセス:北四番丁駅から徒歩19分/川内駅から徒歩22分/東北大学病院から徒歩10分
電話番号:022-200-2450





